Acum este Mar Apr 21, 2026 9:33 am

forum.cursuridecalificareacreditate.ro

Forum Tehnic : Frigotehnisti ,Instalatori ,Electricieni si Sisteme Fotovoltaice

Plan electrica de antrenament ,gasiti ce este gresit

Aici cursanti pot expune ce nelamuri sau intrebari au legat de cursul Electricieni
 
Mesaje: 1
Membru din: Mar Iun 11, 2019 12:29 am
Localitate: Silisteni

Plan electrica de antrenament ,gasiti ce este gresit

Mesaj de Mitu.Mitu » Mar Iun 11, 2019 12:30 am

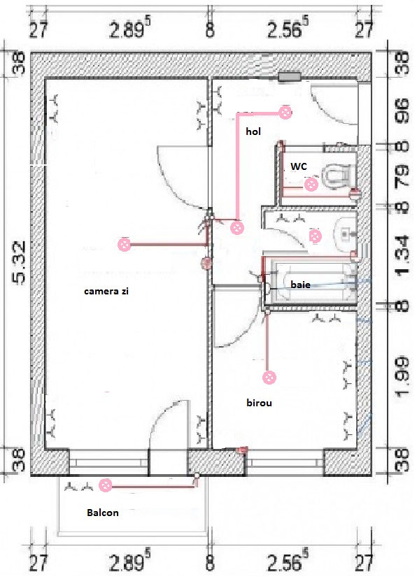
Plan de arhitectura apartament pentru alimentare monofazata Am pus la deruta ,circuitul de lumina si de prize sa vada omulunde este gresit
Fişiere ataşate
Alex ii.jpg
Plan de arhitectura apartament pentru alimentare monofazata Am pus la deruta ,circuitul de lumina si de prize sa vada omulunde este gresit
Alex ii.jpg (132.3 KiB) Vizualizat de 2038 ori

Avatar utilizator
 
Mesaje: 32
Membru din: Vin Sep 13, 2019 11:56 am
Localitate: Afumati

Re: Plan electrica de antrenament ,gasiti ce este gresit

Mesaj de Manea.Florea » Vin Sep 13, 2019 12:25 pm

Prin bai prize si baia este mica nu respectă

Avatar utilizator
 
Mesaje: 50
Membru din: Vin Sep 20, 2019 10:28 am
Localitate: Bucuresti

Re: Plan electrica de antrenament ,gasiti ce este gresit

Mesaj de AndoneVlad » Vin Sep 20, 2019 11:30 am

Mitu.Mitu scrie:Plan de arhitectura apartament pentru alimentare monofazata Am pus la deruta ,circuitul de lumina si de prize sa vada omulunde este gresit

PRIZA MONTATA LANGA VASUL DE WC


Înapoi la Intrebari, Nelamuri, Sugestii legate de cursul de Electricieni

Cine este conectat

Utilizatorii ce navighează pe acest forum: Niciun utilizator înregistrat şi 1 vizitator