Acum este Sâm Apr 25, 2026 7:30 am

forum.cursuridecalificareacreditate.ro

Forum Tehnic : Frigotehnisti ,Instalatori ,Electricieni si Sisteme Fotovoltaice

Plan arhitectura ,sa invete colegii desenul tehnic

Practica Cursuri Electricieni Albume foto Practica
Cursuri Electricieni Albume Foto lucrari primite de la fostii cursanti
 
Mesaje: 3
Membru din: Sâm Apr 27, 2019 5:26 am
Localitate: Tisita

Plan arhitectura ,sa invete colegii desenul tehnic

Mesaj de Sorel23 » Sâm Apr 27, 2019 5:48 am

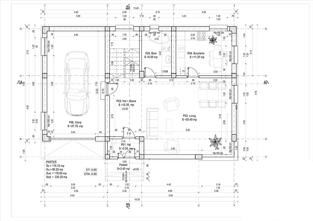
Am ridicat planul de arhitectura al unei case ,fiecare se poate antrena sa puna corpurile de iluminat sa formeze circuite de priza ,
Toate elementele de arhitectura din plan ,noi le stim deoaree la scoala am invatat principalele simboluri sa putem citi un plan
Fişiere ataşate
Plan arhitectura ,pentru instalatii electrice .jpg
Plan arhitectura ,pentru instalatii electrice
Plan arhitectura ,pentru instalatii electrice .jpg (104.94 KiB) Vizualizat de 1256 ori

Înapoi la Practica Cursuri Electricieni Albume foto Practica

Cine este conectat

Utilizatorii ce navighează pe acest forum: Niciun utilizator înregistrat şi 1 vizitator