Acum este Mie Apr 22, 2026 10:54 am

forum.cursuridecalificareacreditate.ro

Forum Tehnic : Frigotehnisti ,Instalatori ,Electricieni si Sisteme Fotovoltaice

Plan instalatie sanitara si obiecte sanitare si calorifere

Aici cursanti pot expune ce nelamuri sau intrebari au legate de cursul de Instalatii :Maistru instalator,Tehnician instalator ,instalator
 
Mesaje: 1
Membru din: Sâm Mai 04, 2019 3:40 pm
Localitate: sindrilita

Plan instalatie sanitara si obiecte sanitare si calorifere

Mesaj de Lache » Sâm Mai 04, 2019 3:41 pm

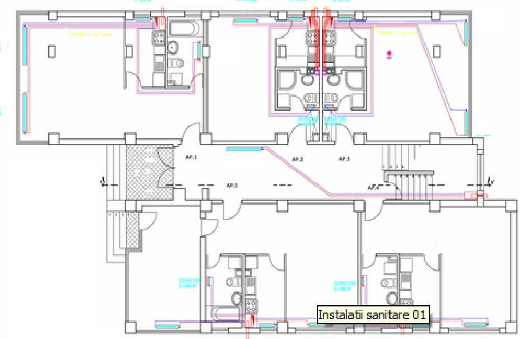
Plan instalatie sanitara si obiecte sanitare
Am si caloriferele conductele de tur retur prin sapa
Fişiere ataşate
Plan parter sanitara si corpuri incalzire .jpg
Plan parter sanitara si corpuri incalzire
Plan parter sanitara si corpuri incalzire .jpg (129.71 KiB) Vizualizat de 8162 ori

 
Mesaje: 1
Membru din: Dum Mai 05, 2019 7:10 pm
Localitate: Duzi

Re: Plan instalatie sanitara si obiecte sanitare si calorife

Mesaj de ViorelSamoilescu » Dum Mai 05, 2019 7:10 pm

Plan instalatie sanitara si obiecte sanitare si calorifere bine pozitionate in planul de arhitectura

Avatar utilizator
 
Mesaje: 29
Membru din: Mar Aug 06, 2019 11:54 am
Localitate: Tunari

Re: Plan instalatie sanitara si obiecte sanitare si calorife

Mesaj de Martac.Paul » Mar Aug 06, 2019 12:59 pm

putini instalatori stiu sa citeasca un plan de sanitara

Avatar utilizator
 
Mesaje: 113
Membru din: Mie Sep 25, 2019 2:25 pm
Localitate: Bucuresti sect 1

Re: Plan instalatie sanitara si obiecte sanitare si calorife

Mesaj de MitreaNicolae » Mie Sep 25, 2019 3:42 pm

Lache scrie:Plan instalatie sanitara si obiecte sanitare
Am si caloriferele conductele de tur retur prin sapa

schema de incalzire este clara

Avatar utilizator
 
Mesaje: 39
Membru din: Joi Oct 17, 2019 3:21 pm
Localitate: Salageni

Re: Plan instalatie sanitara si obiecte sanitare si calorife

Mesaj de Yury.Mitrea » Joi Oct 17, 2019 3:34 pm

Lache scrie:Plan instalatie sanitara si obiecte sanitare
Am si caloriferele conductele de tur retur prin sapa

Schema de incalyire este clara


Înapoi la Intrebari, Nelamuriri, Sugestii legate de cursurile de Instalator

Cine este conectat

Utilizatorii ce navighează pe acest forum: Niciun utilizator înregistrat şi 1 vizitator