Acum este Mar Apr 21, 2026 8:11 am

forum.cursuridecalificareacreditate.ro

Forum Tehnic : Frigotehnisti ,Instalatori ,Electricieni si Sisteme Fotovoltaice

Plan sanitara parter se vad coloanele de 20 ARM ACM

Clipuri Video Cursuri Instalatori :Maistru instalator,Tehnician instalator ,instalator,realizate pe teren la diferite Societati
Avatar utilizator
 
Mesaje: 23
Membru din: Lun Apr 22, 2019 6:01 pm
Localitate: Voluntari

Plan sanitara parter se vad coloanele de 20 ARM ACM

Mesaj de Avramescu Mihai » Lun Apr 22, 2019 6:38 pm

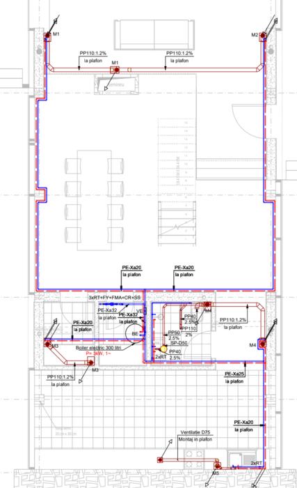
Plan sanitara parter , schema instalatiei de apa calda menajera si apa rece menajera
interesant cat debit poate duce un PE-XA20
Fişiere ataşate
Plan sanitara parter.JPG
Plan sanitara parter , schema instalatiei de apa calda menajera si apa rece menajera
Plan sanitara parter.JPG (42.42 KiB) Vizualizat de 29271 ori

 
Mesaje: 1
Membru din: Vin Apr 26, 2019 8:16 am
Localitate: Bucuresti

Re: Plan sanitara parter se vad coloanele de 20 ARM ACM

Mesaj de Fred » Vin Apr 26, 2019 8:17 am

Boilerul de 300 litri este legat la apa rece cu conducta D=32 ,obiectele sanitare deci sunt alimentate cu ARM SI ACM cu D=20 ,am inteles bine

Avatar utilizator
 
Mesaje: 32
Membru din: Vin Sep 13, 2019 11:56 am
Localitate: Afumati

Re: Plan sanitara parter se vad coloanele de 20 ARM ACM

Mesaj de Manea.Florea » Vin Sep 13, 2019 12:34 pm

Puțini știu sa citească schema coloanelor

Avatar utilizator
 
Mesaje: 113
Membru din: Mie Sep 25, 2019 2:25 pm
Localitate: Bucuresti sect 1

Re: Plan sanitara parter se vad coloanele de 20 ARM ACM

Mesaj de MitreaNicolae » Mie Sep 25, 2019 3:24 pm

Fred scrie:Boilerul de 300 litri este legat la apa rece cu conducta D=32 ,obiectele sanitare deci sunt alimentate cu ARM SI ACM cu D=20 ,am inteles bine

planul de sanitara este bine sa fie cunoscut de un instalator

Avatar utilizator
 
Mesaje: 37
Membru din: Lun Oct 07, 2019 12:10 pm
Localitate: Leordeni

Re: Plan sanitara parter se vad coloanele de 20 ARM ACM

Mesaj de Rudy23 » Lun Oct 07, 2019 2:17 pm

Bine este un instalator sa stie sa citeasca planul si schema coloanelor

 
Mesaje: 8
Membru din: Joi Dec 05, 2019 11:04 pm
Localitate: Minis

Re: Statie pompare incendii ,Drencere si Sprinklere

Mesaj de LicaKlaus » Vin Dec 06, 2019 12:17 am

Fred scrie:Boilerul de 300 litri este legat la apa rece cu conducta D=32 ,obiectele sanitare deci sunt alimentate cu ARM SI ACM cu D=20 ,am inteles bine

si eu am vazut la fel

 
Mesaje: 19
Membru din: Joi Ian 23, 2020 12:12 am
Localitate: sect 5

Re: Plan sanitara parter se vad coloanele de 20 ARM ACM

Mesaj de Slava Andrei » Joi Ian 23, 2020 12:33 am

Avramescu Mihai scrie:Plan sanitara parter , schema instalatiei de apa calda menajera si apa rece menajera
interesant cat debit poate duce un PE-XA20

Un curs de instalator foarte bun

 
Mesaje: 44
Membru din: Mar Aug 08, 2023 9:51 pm

Re: Plan sanitara parter se vad coloanele de 20 ARM ACM

Mesaj de IonJianu33 » Mie Aug 09, 2023 3:12 pm

Am facut si un curs de instalator online dar vorba colegului nu am habar ce inseamna
Ce carte recomandati


Înapoi la Practica Cursuri Instalatori video

Cine este conectat

Utilizatorii ce navighează pe acest forum: Niciun utilizator înregistrat şi 1 vizitator