Acum este Lun Apr 20, 2026 7:35 pm

forum.cursuridecalificareacreditate.ro

Forum Tehnic : Frigotehnisti ,Instalatori ,Electricieni si Sisteme Fotovoltaice

Planuri de instalatii ,coloane menajera PVC-KG

Clipuri Video Cursuri Instalatori :Maistru instalator,Tehnician instalator ,instalator,realizate pe teren la diferite Societati
Avatar utilizator
 
Mesaje: 23
Membru din: Lun Apr 22, 2019 6:01 pm
Localitate: Voluntari

Planuri de instalatii ,coloane menajera PVC-KG

Mesaj de Avramescu Mihai » Lun Apr 22, 2019 6:09 pm

Planuri de instalatii ,coloane menajera PVC-KG
Fişiere ataşate
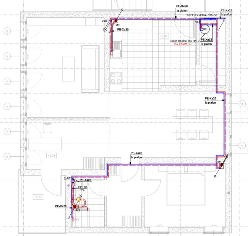
ALIMENTARE ARM SI ACM SCHEMA DISTRIBUTIEI.JPG
ALIMENTARE ARM SI ACM SCHEMA DISTRIBUTIEI.JPG (75.84 KiB) Vizualizat de 6737 ori
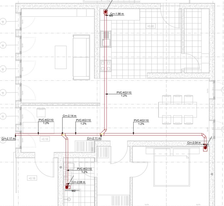
colector CANALIZARE M1 M2 M3.JPG
colector canalizare M1 M2 M3
colector CANALIZARE M1 M2 M3.JPG (40.75 KiB) Vizualizat de 6737 ori
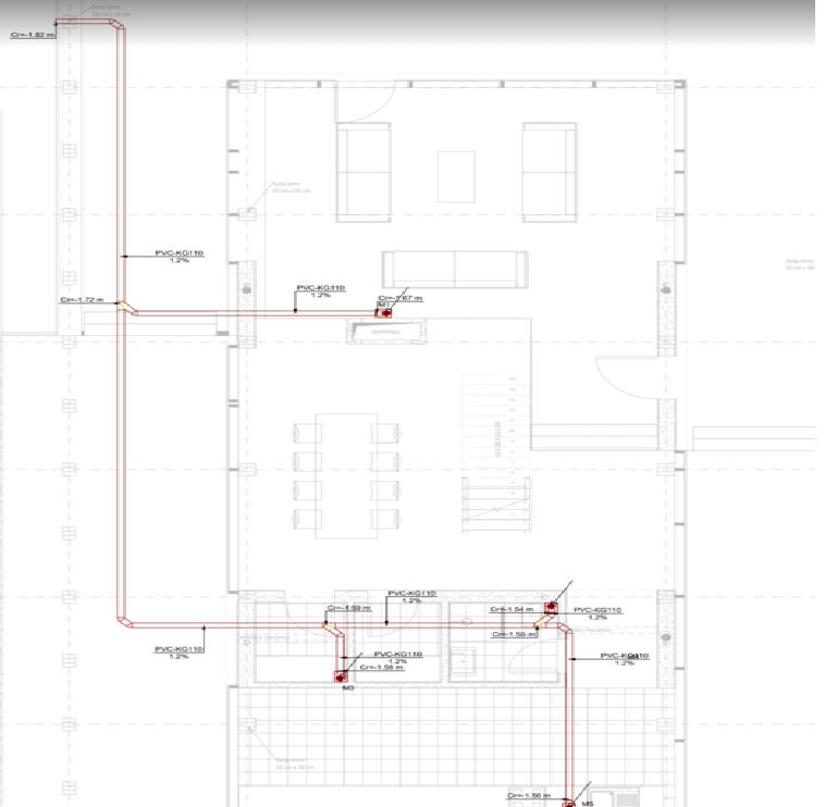
plan cu canalizarea interioara si coloanele de menajera.JPG
plan cu canalizarea interioara si coloanele de menajera
plan cu canalizarea interioara si coloanele de menajera.JPG (64.32 KiB) Vizualizat de 6737 ori

Avatar utilizator
 
Mesaje: 42
Membru din: Joi Sep 05, 2019 10:59 am
Localitate: samburesti

Re: Planuri de instalatii ,coloane menajera PVC-KG

Mesaj de Lamba Paul » Joi Sep 05, 2019 11:02 am

Foarte bine ca va ocupati sa invete u8n instalator sa citeasca planurile de instalatii sanitare .Schema coloanelor etc

Avatar utilizator
 
Mesaje: 39
Membru din: Joi Oct 17, 2019 3:21 pm
Localitate: Salageni

Re: Planuri de instalatii ,coloane menajera PVC-KG

Mesaj de Yury.Mitrea » Joi Oct 17, 2019 3:40 pm

Avramescu Mihai scrie:Planuri de instalatii ,coloane menajera PVC-KG

Prefer conducte de pvc-kg dar in subsol si in exterior , prin casa din PP cu mufa si garnitura

 
Mesaje: 33
Membru din: Lun Dec 02, 2019 6:24 pm
Localitate: Bucuresti

Re: Planuri de instalatii ,coloane menajera PVC-KG

Mesaj de Halmai.Mircea » Lun Dec 02, 2019 6:41 pm

Avramescu Mihai scrie:Planuri de instalatii ,coloane menajera PVC-KG

Bine ca mai explica cineva schema coloanelor


Înapoi la Practica Cursuri Instalatori video

Cine este conectat

Utilizatorii ce navighează pe acest forum: Niciun utilizator înregistrat şi 1 vizitator